Your Cozy Corner of Happiness

Your Cozy Corner of Happiness

Live in Comfort, Live in Style

Welcome to Villa 3, a charming 1185 sqft villa designed for those who want to embrace the warmth and beauty of senior living. This villa provides both comfort and style in every corner.

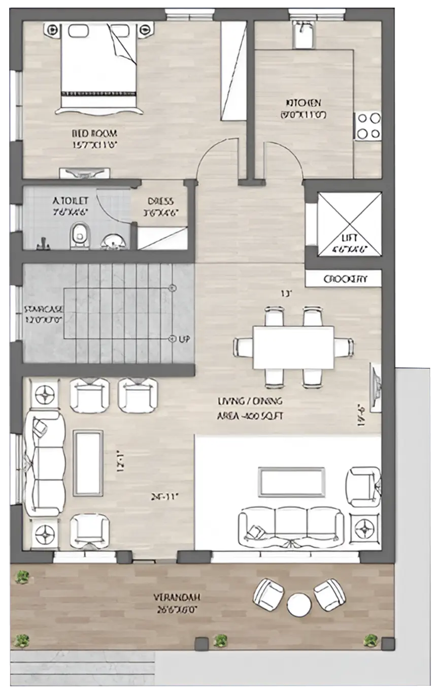
Villa-3-1st-floor
Bedroom Bedroom
Living & Dining Living & Dining Area
Lift Lift
Kitchen Kitchen
Accessibility Accessibility Features

Isometric View of Ground Floor

Villa-3-2nd-floor
Two Bedrooms Two Bedrooms
Balconies Balconies
Lift & Staircase Lift & Staircase
Sofa Corner Sofa Corner

Isometric View of First Floor

Villa 3 is a cozy, well-crafted haven where you can enjoy a comfortable, fulfilling lifestyle in your golden years.

Wide Doorways & Hallways

Wide Doorways & Hallways

Lever-style Door Handles

Lever-style Door Handles

Low-Threshold Showers

Low-Threshold Showers

Adjustable Bathroom Fixtures

Adjustable Bathroom Fixtures

Smart Lighting Systems

Smart Lighting Systems

Non-Slip Bathroom Mats

Non-Slip Bathroom Mats

Easy-Reach Storage Spaces

Easy-Reach Storage Spaces

Slip-Resistant Flooring

Slip-Resistant Flooring

Bedside Light Controls

Bedside Light Controls

Handrails in Staircases

Handrails in Staircases

Ergonomic Seating

Ergonomic Seating

Temperature-Controlled Rooms

Temperature-Controlled Rooms

Step-Free Entryways

Step-Free Entryways

Recliner Chairs for Relaxation

Recliner Chairs for Relaxation

Outdoor Seating with Shade

Outdoor Seating with Shade

Senior-Friendly Fitness Equipment

Senior-Friendly Fitness Equipment

Grab Bars & Railings

Grab Bars & Railings

Accessible Kitchen Counters

Accessible Kitchen Counters

Well-lit Homes

Well-lit Homes

Wheelchair Enabled Homes

Wheelchair Enabled Homes

Light Sensors

Light Sensors

Emergency Panic Button

Emergency Panic Button

Common Areas for Interaction

Common Areas for Interaction

Elder-Friendly Furniture

Elder-Friendly Furniture

Wide Parking Spaces

Wide Parking Spaces

Get the Answers You Seek

We Know You Have Questions—We’re Here with Answers!

Earth Village is a senior living community designed for comfort, luxury, and an enriching lifestyle. It offers thoughtfully designed villas, engaging activities, and a supportive environment for retirees.
Earth Village is nestled in the serene and accessible locale of Laulai, Odisha, India, offering a peaceful environment while ensuring close proximity to essential services and urban conveniences.
Earth Village is designed for seniors looking for a fulfilling, independent, and community-oriented lifestyle. Couples and individuals who are retired or nearing retirement are welcome.
Earth Village is a luxury senior living community that promotes independent living. However, we also provide senior-friendly amenities, accessibility features, and healthcare support for added peace of mind.
Earth Village offers multiple villa options, each designed for senior-friendly living with accessibility features, spacious layouts, and modern comforts.
While the core design remains the same for uniformity, residents can personalize interiors, furniture, and decor to suit their preferences.
Each villa includes senior-friendly features such as wide doorways, anti-slip flooring, lifts, easy-to-navigate layouts, and grab bars in bathrooms.
Earth Village hosts a variety of social, cultural, and recreational activities, including performing arts, yoga, wellness programs, community gatherings, and festive celebrations.
Yes! Earth Village has partnered with IIG Arts Academy to offer residents a chance to explore dance, music, theater, painting, poetry, and more.
While each villa has a kitchen, Earth Village offers optional dining services with nutritious and customized meal plans for residents who prefer hassle-free meals.
Earth Village ensures access to healthcare support, including emergency medical assistance, periodic health checkups, and partnerships with healthcare providers.
Yes, Earth Village is a fully gated community with 24/7 security, CCTV surveillance, and controlled entry for residents’ safety.
Earth Village provides housekeeping, maintenance, and concierge services to ensure a comfortable, worry-free lifestyle.
You can contact us through our website, call our support team, or book an appointment for a guided tour of the community.